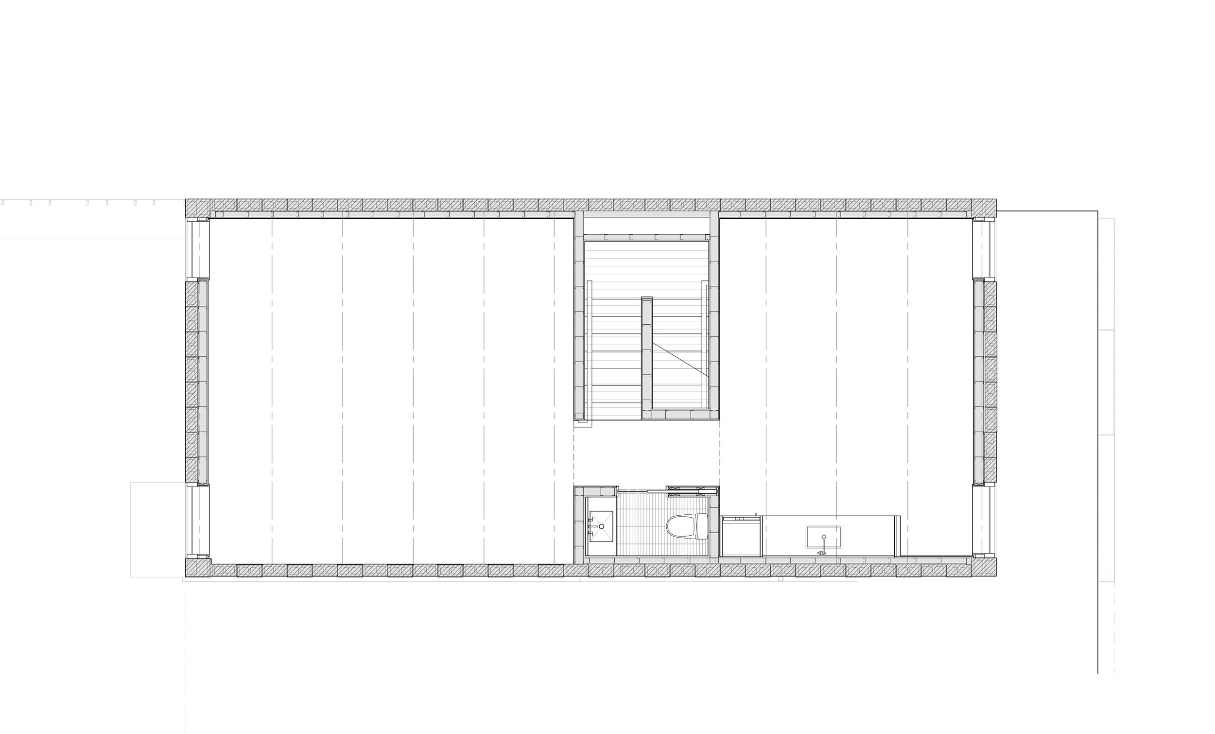
Building 2 offers +/- 1740 sf across two floors.

Floor-to-ceiling windows facing Burnet ensure excellent visibility for your business.

An adaptable four-room layout provides flexibility to meet your needs.